Image Source: Ku-ring-gai Council - Accessed 26/2/19
The existing Lindfield library is around 60 years old and to better cater for community needs, is proposed to be moved into the Lindfield Community Hub development proposal on another site owned by Ku-ring-gai Council. The site has a pretty long history with Council resolving to prepare a concept design for the existing library site at 259-271 Pacific Highway in Lindfield in July 2015. Following completion of the masterplan and planning proposal documentation, Council adopted the planning proposal on 6 September 2016
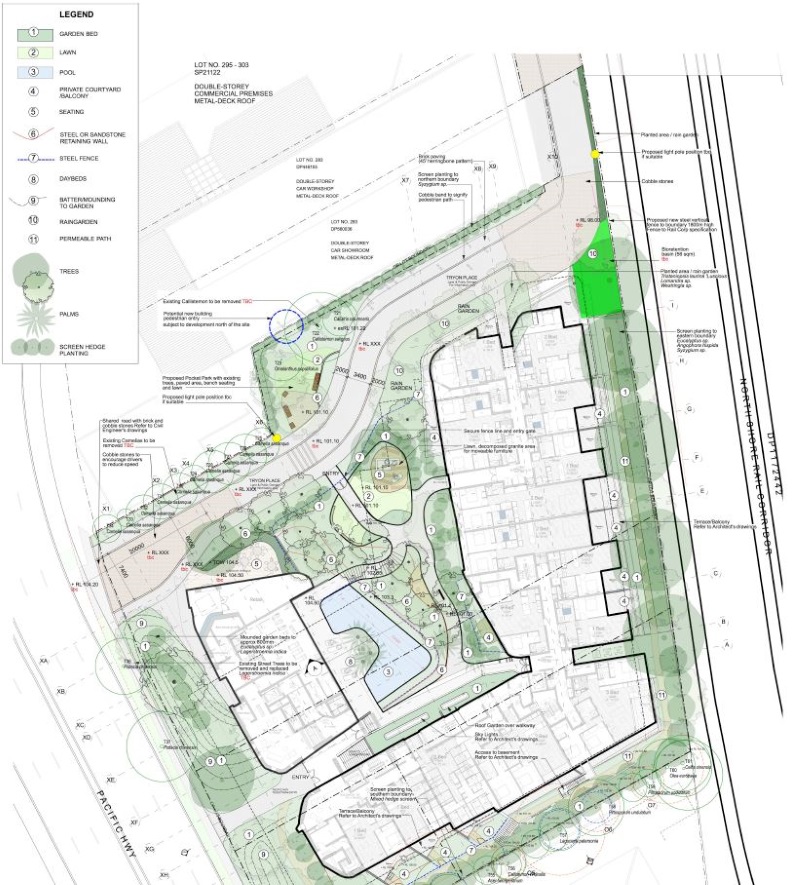
The project proposes to convert the existing library and old medium density residential apartments into new residential apartments with a café on the ground floor. As part of the detailed planning of the site undertaken in 2018, the project was undertaken in two key stages being pre-feasibility/concept design and then the preparation of the Development Application or DA.
PeopleTrans provided transport and traffic engineering advice to the design team during the development of the concept plans specifically relating to access, parking and the function of the laneway next to the site. We also considered the levels of pedestrian, cyclist, kiss & ride and general traffic and how they could interact safely.
Detailed analysis was also undertaken to determine the recommended direction of travel of the laneway to determine its use as a one-way or two-way road.
The deliverables provided to the design team were a pre-design services transport report and a detailed transport impact assessment report to support the overall development application for the site.
For more information about our development application and traffic engineering experience, please contact Alan Stewart in our Sydney office on 02 8226 8760.
